Radaway Essenza New KDD sprchový kout levá část 90x90 cm čtvercový chrom lesk/průhledné sklo 1385060-01-01L
- Značka: Radaway
- Série: Essenza New KDD
- Dostupnost produktu: do 5 dnů
- Upevnění: levé
- Ochranný povlak: Ano
- Provedení skla: průhledné sklo
- Druh: čtvercový
- Vstup: pantové dveře
- V sadě: sprchový kout bez Sprchové vaničky -
- Barva profilu: chrom
Popis
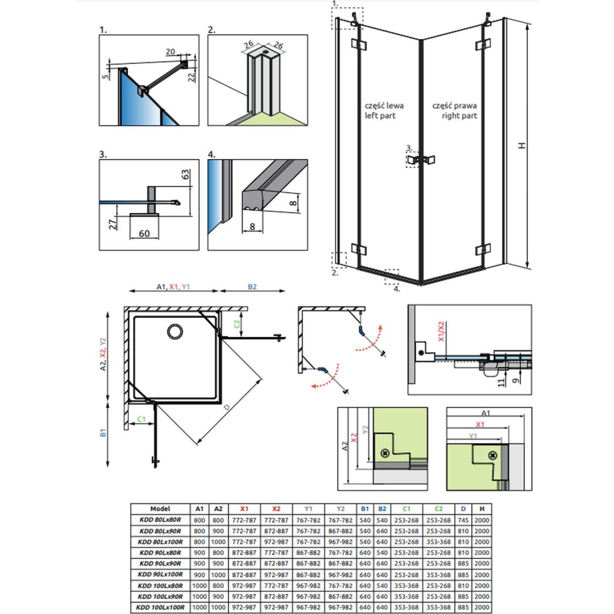
- kompletní kabina se skládá z levé a pravé části
- levá část
- je vhodná pro sprchovou vaničku o délce 90 cm
- šířka: 90 cm
- rozměr k ose skla 86,7-88,2 cm
- výška 200 cm
- dveře otevírané směrem ven
- kombinace velkých skleněných tabulí a elegantních chromovaných detailů
- panty v jedné rovině se skleněnou plochou
- 6 mm čiré tvrzené sklo pro bezpečnost a ochranu
- povrchová úprava Easy Clean snižuje množství nečistot a usnadňuje jejich odstraňování
- mechanismus zvedání a spouštění dveří
Pro objednání kompletního sprchového koutu je třeba vzít v úvahu dvě čísla dílů: levý díl a pravý díl
Na obrázku je zobrazena kompletní kabina KDD, levý a pravý díl.
Parametry
Podrobnosti výrobce
Otázky a odpovědi (0)
Nenašli jste odpověď na svou otázku?




