Ravak Brillant sprchové dveře 90 cm sklopné chrom lesk/průhledné sklo 0UP7AA00Z1
Upevnění
Popis
Dvoudílné sprchové dveře Brilliant s výplní z čirého skla s ochrannou vrstvou Ravak AntiCalc®. Pro kompletní sprchový kout je nutné dokoupit sadu B-SET. V provedení lesklý chrom. Otevírací systém na panty. Pravá verze.
Cena se vztahuje pouze na sprchový kout (sklo) bez montážní sady B SET (upevňovacích prvků), které je nutné zakoupit samostatně jako samostatnou položku!
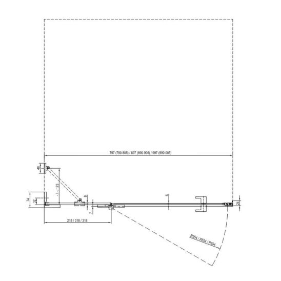
Technické výkresy zobrazují levou variantu dveří!
Technický popis
- typ provedení: pravá (P)
- rozměr A: 89-90,5 cm
- rozměr B: 55,4 cm
- rozměr S: 30,3 cm
- rozměr V: 52,9 cm
- výška produktu: 195 cm
- barva provedení: B SET (závěsy, úchyty, upevnění) v provedení lesklý chrom. Je třeba dokoupit samostatně
- výplň z bezpečnostního skla: 6/8 mm; Transparent
-povrchová úprava AntiCalc
Produkt se skládá ze dvou pevných částí, z nichž jedna tvoří otevírací dveře. Zvedací mechanismus zajišťuje aretaci dveří v základní poloze, jejich automatické zavírání a zvedání nad prahovou lištou při otevírání. Levá nebo pravá verze produktu je určena umístěním závěsů dveří při pohledu zvenčí. Montáž do výklenku nebo do obloženého rohu koupelny na vaničku Ravak: Perseus Pro, Perseus Pro Flat, Perseus Pro Chrome, Gigant Pro, Gigant Pro Flat, Gigant Pro Chrome nebo přímo na podlahu s vestavěným lineárním odtokem nebo odtokovou mřížkou. Sprchové dveře BSD2 se dodávají v sadě: v jednom balení jsou skleněné prvky a v druhém balení (B SET) jsou kovové části. Obě části produktu je třeba objednat samostatně (sklo + B SET).
Kombinace masivních kovových prvků a dokonalého chromování zaručuje nejvyšší možnou kvalitu. Díky tomu můžeme zaručit velmi dlouhou životnost všech dílů sady B SET – byla potvrzena testem životnosti: 30 let. Maximální stabilitu produktu zajišťuje držák skla Brilliant, který lze dokoupit i pro menší rozměry sprchových dveří. Sprchové dveře Brilliant BSD2 se dokážou přizpůsobit stavebním nepřesnostem.
Před montáží produktu si prosím přečtěte technickou dokumentaci, číslo uvedené v názvu konkrétního produktu neurčuje jeho přesné rozměry, ale pouze přibližný rozsah.
Klenot mezi sprchovými kabinami
Elegance, smysl pro detail, nadčasový vzhled. Brilliant je místo, kde se budete cítit obklopeni dokonalým designem.
Sprcha na celý život
Kombinace masivních kovových prvků a odolného chromu zaručuje nejvyšší možnou kvalitu všech kovových prvků. Díky testu odolnosti na 30 let můžeme zaručit jejich dlouhou životnost.
Suchá koupelna
Dveře sprchového koutu nic nepropustí. Ani dovnitř, ani ven. Díky mechanismu zvedání závěsů se samy zavírají a dokonale těsní.
Úklid za chvilku
Promyšlený design usnadňuje čištění sprchy. Závěsy jsou zapuštěny do skla zevnitř sprchové kabiny, což usnadňuje její údržbu.
Ochrana proti usazeninám
I ta nejčistší voda zanechává stopy. A to je vodní vápenatý kámen. Sklo chráníme patentovanou technologií RAVAK AntiCalc®. Působí proti usazování vodního kamene, díky čemuž je údržba čistoty ještě snazší.
Snadno nastavitelná kabina
Sprchové kouty Brilliant se dokážou přizpůsobit i stavebním nerovnostem. Polohu produktu lze snadno nastavit až o 12 milimetrů.
Parametry
Podrobnosti výrobce
Otázky a odpovědi (0)
Nenašli jste odpověď na svou otázku?






























